ガリシア代々木  203号室【仲介手数...

外観図
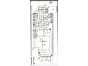
図面
販売価格/
3,030万種別/マンション戸売り お問合せコード[6_364 ]
交 通/
山手線/新宿 徒歩 7分 / バス-分・バス歩-分
所在地/
東京都渋谷区代々木2丁目 18-4

メモ欄: